I type
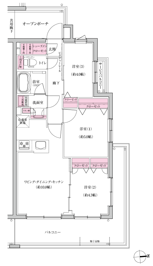
3LDK+SIC
- 専有面積/55.59㎡(約1.69坪)
- オープンポーチ面積/5.60㎡(約1.69坪)
- バルコニー面積/15.83㎡(約4.78坪)
- サービスバルコニー面積/1.36㎡(約0.41坪)

※WIC:ウォークインクロゼット、SIC:シューズインクローゼット、P:パーソナルブース

※WIC:ウォークインクロゼット、SIC:シューズインクローゼット、P:パーソナルブース
本広告を行い取引を開始するまでは、契約・予約受付・申し込み順位保全の確保に係わる
行為は一切できませんので、予めご了承ください。〈2026年4月下旬販売開始予定〉